1623 Wohnungsbau München Potsdamer Straße
Neubau einer Wohnanlage mit Tiefgarage
, München, LP 1-4, BGF O.I. 6.034 m²Bauherr: Wohnungsunternehmen Sieber GmbH & Co. KG, München
Landschaftsarchitektur: Samy Freiraum Architektur, München
Baumanagement: Maier Neuberger Baumanagement GmbH
Tragwerksplanung: Brandl & Eltschig GmbH, Freising
Technische Ausrüstung: Hopf Planungsbüro GmbH, Schnaitsee
Bauphysik: Kurz & Fischer, Feldkirchen-Westerham
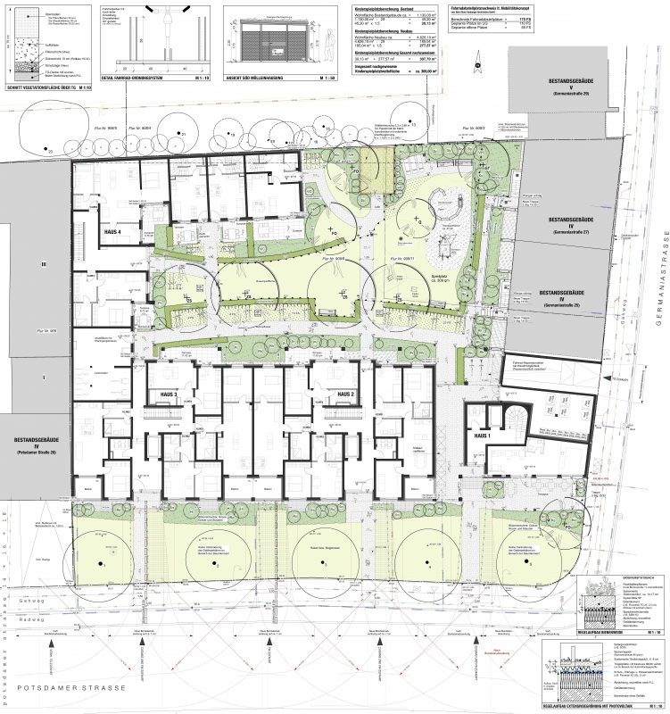
Die Planungsaufgabe umfasst die auf dem Grundstück befindlichen Wohngebäude an der Potsdamer Straße und an der Germaniastraße abzureißen und durch einen Neubau mit Tiefgarage zu ersetzen. Zwei Gebäude an der Germaniastraße bleiben erhalten, um möglichst vielen Altmietern die Möglichkeit zu geben, in ihrem gewohnten Wohnumfeld zu bleiben.
Entlang der Südseite des Baugrundstücks wird ein fünfgeschossiger Baukörper mit einem zurückspringenden Terrassengeschoss geplant. Die Wohnanlage wird mit 76 Wohneinheiten als freifinanzierter Mietwohnungsbau geplant. Im Erdgeschoss ist an der Straßenecke eine Ladennutzung für ein Café oder eine Bäckerei vorgesehen. Die stufenlose Erschließung des Hofes erfolgt über einen Durchgang im östlichen Wohngebäude von der Potsdamer Straße aus. Die Häuser 1, 2 und 3 werden über einen großzügigen Fußweg von der Südseite (Potsdamer Straße) erschlossen. Das Haus 4, sowie die drei Stadthäuser erreicht man über den Innenhof, welcher über einen Durchgang zwischen Haus 1 und 2 zugänglich ist.



