2106 Wohnungsbau Regensburg Prinz-Leopold-Kaserne
Neubau einer im Betrieb klimaneutralen Wohnanlage mit Kita, Gewerbeflächen, Tagespflege und soziokulturellen Nutzungen
, Regensburg, LP 1-9, Generalplanung, BGF O.I. 54.083 m²Bauherr: Stadtbau-GmbH Regensburg
Generalplanung: Maier Neuberger Architekten GmbH mit
Planung Hülle: PALAIS MAI Architekten, München
Baumanagement: Maier Neuberger Baumanagement GmbH
Landschaftsarchitektur: grabner huber lipp, Landschaftsarchitekten, Freising
Bauphysik: Kurz+Fischer, Kirchheim
Brandschutz: K33 Brandschutz, München
Das städtebauliche Konzept für den neuen Stadtteil auf dem Gelände der ehemaligen Prinz-Leopold-Kaserne in Regensburg von ISSS research Architekten und Bauchplan Landschaftsarchitekten sieht eine klassische, raumbildende städtebauliche Struktur vor. Das Quartier ist als ein soziales und ökologisches Modellprojekt konzipiert, das mit neuen Mobilitätskonzepten und Quartiersgaragen Stellplätze reduzieren und Tiefgaragen minimieren soll. Zentrales Element ist ein diagonal verlaufender Quartierspark, der nach Norden und Süden an bestehende Grünstrukturen anbindet.
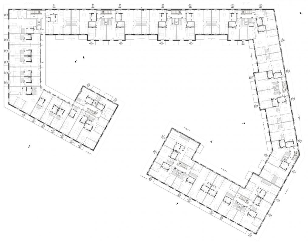
Die drei Wohnhöfe der Stadtbau-GmbH Regensburg sind zentral gelegen im unmittelbaren Anschluss an den Quartierspark. Als die ersten Neubauten im Quartier werden sie die Ziele des Quartiers in Maßstab, Atmosphäre und Anmutung maßgeblich präsentieren. Chance und Aufgabe der Initialprojekte ist eine überzeugende soziale, architektonische, freiräumliche, nachhaltige und wirtschaftliche Interpretation des Modellprojektes.
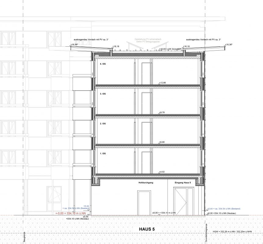
Die Häuser loten in einem großen Maßstab die Möglichkeiten und Chancen einer sehr einfachen, seriellen und kostensparenden Bauweise ohne unterirdische Keller, Technikräume und Tiefgaragen aus. Müll, Fahrräder, Sondernutzungen und Technikräume sind im multifunktionalen Erdgeschoss untergebracht, die Abstellflächen der BewohnerInnen sind in die Wohnungen integriert. In der Kombination aus einer tragenden betonminimierten Primärkonstruktion und hochgedämmten, vorgefertigten Außenwänden in Holzrahmenbauweise und Systembalkonen entstehen wirtschaftliche und nachhaltige Gebäude mit minimierter CO2-Bilanz. Das Gründach mit weit auskragendem Vordach wird zum Erkennungszeichen des Projektes. Es dient zugleich einem maximierten Solarertrag der Dachflächen und dem konstruktiven Witterungsschutz der Holzfassade.
Die mit den beschriebenen Prinzipien verbundene Robustheit zeigt sich auch in der Formulierung der Fassaden. Die Serialität sich wiederholender Fensterformate und der im Holzbau notwendigen horizontalen und vertikalen Brandsperren führt zu einer eigenen Logik. Über unterschiedliche Farbigkeiten und einfache Holzaufdoppelungen wird diese Logik zum Regel-Motiv. Sonder-Motive entstehen bewusst im Erdgeschoss bei den Wohnungseingängen, Fahrradräumen, Müll- und Technikräumen. Das Erdgeschoss ist in Form von anderen Fensterformaten, Stützenköpfen, Verlegemustern der Fassaden, Durchgängen und einer bewussten Farbigkeit als aktives „Sondergeschoss“ lesbar und zur Benutzung und Aneignung durch die Bewohnenden gedacht.
Zu den verkehrsbelasteten Straßenseiten zeigen sich die Blöcke aus Schallschutzgründen geschlossen. Insgesamt wird aber durch Baukörpertiefen und –höhen versucht, Geschossfläche weg von den Straßen und hin zum Quartierspark zu verlagern.
















